Casa indipendente con giardino, nel cuore del centro storico di Salve, a circa cinque chilometri dal mare, in un caratteristico vicolo chiamato Vico Pennina. Salento Agency propone in vendita una suggestiva proprietà ricca di potenzialità. Dietro un semplice e discreto cancello in ferro si apre una tipica abitazione a corte, capace di sorprendere per il suo fascino autentico e per gli spazi che la compongono. Una grande corte interna funge da collegamento tra i diversi ambienti della casa: alcuni sono già stati recuperati e risultano perfettamente abitabili, mentre altri necessitano di interventi di ristrutturazione.
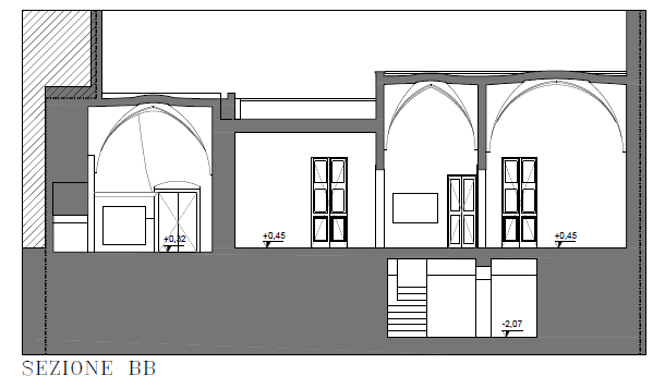
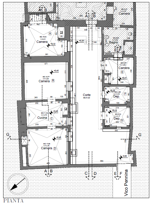
La parte centrale dell’abitazione è quella già restaurata. Varcando la porta d’ingresso e alzando lo sguardo si rimane colpiti dalla straordinaria volta salentina, un elemento architettonico di grande bellezza e unicità che caratterizza la stanza principale. Questo ampio ambiente è utilizzato come zona living e sala da pranzo e rappresenta il punto di distribuzione verso gli altri spazi della casa. Sul lato destro si trova una porta che conduce a un vano polifunzionale, a un bagno e alla prima camera da letto. Il bagno è stato realizzato in stile marocchino tadelakt, utilizzando materiali naturali che contribuiscono a creare un’atmosfera calda e raffinata.
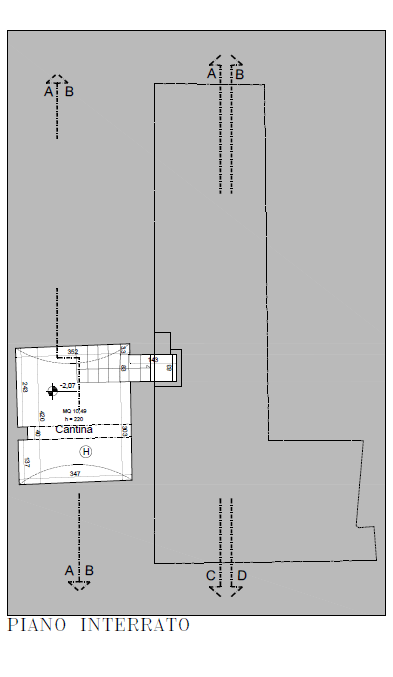
Un’altra porta sullo stesso lato introduce al cucinotto, uno spazio semplice ma accogliente, reso ancora più suggestivo dalla presenza di un antico focolare recuperato e riportato alla sua funzione originaria. Sia dalla cucina sia dalla zona living è possibile accedere al giardinetto situato sul retro della casa, uno spazio intimo e riservato dove trascorrere momenti di relax durante le giornate estive. Nel giardino si trova anche un locale deposito e una scala coperta che conduce alla cantina, caratterizzata da una tradizionale volta a botte.
Sul lato sinistro della zona living si aprono altre due porte: una conduce alla seconda camera da letto matrimoniale, mentre l’altra porta a una stanza situata al piano ammezzato, collegata al lastrico solare. Da qui è possibile godere di una splendida vista su gran parte del centro storico di Salve. Il recupero di questa parte dell’abitazione è stato realizzato grazie al lavoro di artigiani locali, con l’utilizzo di materiali naturali come il coccio pesto e con grande attenzione alla conservazione degli elementi originali.
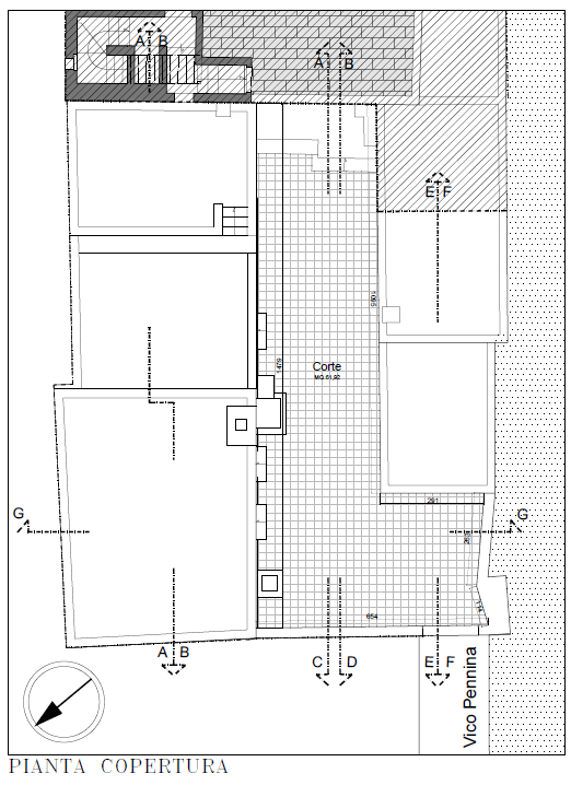
La porzione della proprietà che necessita di ristrutturazione si trova sul lato sinistro della corte d’ingresso ed è composta da tre vani con volte a stella in perfette condizioni strutturali e da un quarto ambiente con solaio in travetti precompressi che richiede la sostituzione. Al piano sottostante è presente un’ulteriore cantina con volta a botte. Sul lato destro della corte si trovano invece due piccoli vani con volte a stella, anch’essi in ottimo stato strutturale.
Grazie alla sua configurazione e alla presenza di diversi ambienti indipendenti, questa proprietà si presta a molteplici utilizzi. Può diventare una splendida residenza principale con spazi dedicati a ospiti e amici, ma anche una struttura ricettiva come bed and breakfast o casa vacanze. In questi ultimi casi esiste inoltre la possibilità di accedere a finanziamenti regionali destinati al recupero del patrimonio storico, naturalmente nel rispetto di specifiche condizioni. Salento Agency affianca i propri clienti non solo durante la fase di acquisto, ma anche nel percorso di sviluppo delle pratiche necessarie per ottenere tali finanziamenti e realizzare gli interventi di ristrutturazione. ✨











































































