Sei alla ricerca di un bellissimo palazzo con piscina in vendita nel Salento?
Nel cuore più silenzioso e suggestivo del centro storico di Salve, lungo una strada che conserva ancora l’atmosfera di un’epoca lenta e autentica, si erge una dimora nobiliare capace di evocare memorie antiche e sensazioni sospese.
Varcare il suo ingresso significa compiere un breve viaggio nel tempo, immergersi in un luogo dove la storia continua a respirare e la bellezza assume il ritmo naturale della pietra e della luce. Il palazzo, restaurato con grande rispetto per la sua identità originaria, ha recuperato la sua eleganza senza ostentazione, trasformandosi in un rifugio in cui la tradizione dialoga con un’accoglienza moderna e raffinata. Ogni spazio racconta qualcosa e ogni superficie sembra aver assorbito la voce discreta di chi vi ha abitato nel corso dei secoli.
Superato l’antico portone, levigato da mani che non conosciamo ma che ne hanno lasciato l’impronta affettuosa, si apre un atrio ampio e luminoso, quasi un preludio alla calma che caratterizza l’intera residenza.
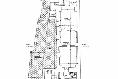
Da qui si raggiungono gli ambienti del piano terra e la scala che conduce al livello superiore, mentre sul fondo appare il giardino, nascosto come un piccolo tesoro. Protetto da un muro in pietra a secco restaurato con cura, questo spazio esterno rappresenta il vero cuore pulsante della casa, un luogo dove la natura cresce in armonia con l’architettura. Le felci morbide, la Buganvillea e gli alberi di limone disegnano scenografie mutevoli durante la giornata, mentre una piscina di venticinque metri quadrati raccoglie la luce e restituisce un senso immediato di quiete.
Gli interni mantengono la stessa atmosfera di equilibrio e rispetto.
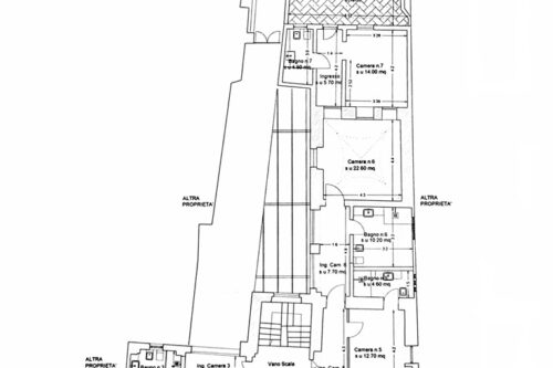
Al piano terra, due stanze ampie accolgono salotto e zona colazione, entrambe collegate a un’area d’ombra esterna dove il fresco del pomeriggio si mescola al profumo delle piante. La cucina, pensata per momenti conviviali, è semi professionale e dotata di una comoda dispensa. Sul lato opposto, uno studio offre un ambiente ideale per chi desidera uno spazio riservato, mentre una lavanderia garantisce praticità quotidiana. La camera padronale, con bagno privato, è luminosa e silenziosa, perfetta per chi cerca intimità. Una seconda camera con bagno ensuite, dotata di accesso diretto al giardino, aggiunge autonomia e comfort per ospiti o famiglie.
Salendo la scala coperta che si apre sul cortile d’ingresso, impreziosita da un portone intarsiato e da una ringhiera in ghisa restaurata con attenzione, si raggiunge il primo piano. Qui prevale la sensazione che il tempo abbia rallentato il suo passo. I pavimenti originali in mosaico e cementine raccontano l’eleganza di un’epoca perduta, mentre le volte alte diffondono una luce soffusa.
Una suite con vasca a vista offre un ambiente intimo, mentre tre camere matrimoniali con bagni privati assicurano privacy e armonia. Sul lato del giardino, una camera indipendente con terrazzo a livello permette di godere di una vista privilegiata sulla piscina, regalando momenti di contemplazione.
Ogni dettaglio del palazzo è stato trattato con cura: i portoncini in ferro restaurati, i cordoli in pietra che incorniciano le fioriere e le piante mediterranee scelte per evocare profumi familiari. Una scala interna conduce ai terrazzi di copertura, spazi luminosi che offrono una vista ampia sul centro storico di Salve. Da quassù, il tramonto colora il paesaggio con toni caldi e regala un senso profondo di quiete.
Città di Salve
Salve, piccolo borgo del basso Salento, conserva la grazia di un luogo che ha saputo attraversare i secoli senza perdere la propria identità. A pochi chilometri, le spiagge di Pescoluse aprono il loro orizzonte turchese, completando l’incanto di questa dimora unica.
Salento Agency, si trova nella marina di Torre Vado, in Piazza Torre n.° 11.




































































































































