In the authentic heart of Salento, between the charming seaside village of San Gregorio and the renowned destination of Santa Maria di Leuca, an extraordinary real estate investment opportunity emerges, combining prestige, nature, and strong income potential. The property enjoys a particularly privileged location, accessible via Via Vicinale Marcatara, and extends over an expansive plot of approximately 12,000 square meters. This land lies within a landscape of remarkable beauty, surrounded by the typical Mediterranean scrub that defines the scenery of southern Salento. Native shrubs such as rosemary, mastic, myrtle, and holm oak fill the air with their characteristic scents, creating a peaceful and authentic atmosphere, ideal for those who wish to live in or offer guests an immersive experience in the most genuine natural environment of the region.
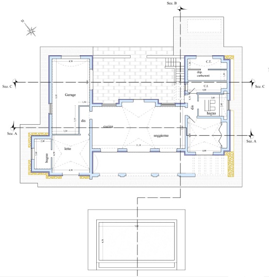
The project, already approved and ready to be developed, involves the construction of a prestigious villa designed to meet the expectations of an international clientele seeking comfort, privacy, and refined elegance. The residence will offer approximately 140 square meters of usable living space, corresponding to about 180 square meters in total gross area. The architectural design reflects the most iconic construction traditions of the region, blending modern comfort with the timeless charm of local building techniques. One of the most distinctive elements of the project will be the traditional star-shaped vaulted ceilings, an architectural feature that symbolizes the elegance of Salento’s historic buildings while also providing natural freshness and harmonious interior spaces.
At the center of the villa will be a spacious living area of about 55 square meters, a bright and welcoming environment designed to become the focal point of the home. This area will serve as the ideal setting for relaxation, social gatherings, and entertaining guests, combining comfort and style while enhancing the architectural character of the property. The sleeping area will include two large suites, each with its own private bathroom, designed to ensure the highest level of privacy and well-being. This configuration makes the property particularly suitable for management within the high-end tourist rental market, which continues to grow as international travelers increasingly choose Salento as an exclusive holiday destination.
The outdoor spaces play a crucial role in the overall value of the property, as they are designed to enhance the living experience and strengthen the connection with the surrounding landscape. In front of the villa, a large covered porch will provide an elegant shaded area, perfect for enjoying the outdoors during the warm summer months. It will offer an ideal setting for relaxing afternoons, open-air dinners, and convivial moments surrounded by the tranquility of the Salento countryside. Next to the house, a beautiful swimming pool of approximately 40 square meters will be constructed. A pool has become an essential feature for villas intended for the luxury tourist rental market, significantly increasing the property’s appeal and its potential booking rate. Its presence not only enhances comfort and leisure opportunities but also represents a strategic element for maximizing the overall return on investment.
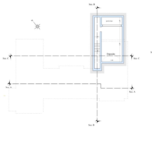
Another valuable feature of the property is the presence of a basement room of approximately 25 square meters. This versatile space offers numerous possibilities and can easily be adapted according to the owner’s vision or business strategy. It could be transformed into an exclusive wellness area with a private spa, providing guests with a complete relaxation experience, or it could become a refined wine cellar designed for private tastings of local wines and gourmet products. Alternatively, the space may serve as a practical storage or technical area to support the operational management of the property as a hospitality business.
From a technical and sustainability perspective, the villa is designed to ensure a high level of autonomy and efficiency. The presence of an artesian well guarantees a reliable water supply throughout the year, while the wastewater disposal system will be managed through sub-irrigation in compliance with current environmental regulations. These features contribute to making the property efficient, environmentally responsible, and well suited for modern hospitality standards.
The buyer will have the opportunity to choose between two different purchasing options. The land with the already approved building project can be acquired for €240,000, allowing the future owner to manage the construction process independently. Alternatively, it is possible to select a turnkey solution, which includes the complete construction of the villa, delivered finished and ready to be inhabited or immediately introduced into the luxury short-term rental market.
The property is located within the municipality of Castrignano del Capo, a town rich in history and tradition that still preserves the authentic charm of the Salento villages. Its historic center features ancient stone buildings, noble palaces, and narrow alleys that reflect centuries of local culture and heritage. Just a few minutes away lies Santa Maria di Leuca, one of the most iconic destinations in southern Italy, widely known as the “finibus terrae,” the place where the Ionian Sea and the Adriatic Sea meet in a spectacular natural setting. The area is famous for its majestic Basilica Sanctuary, its impressive lighthouse overlooking the promontory, and the dramatic coastline dotted with caves and cliffs rising above crystal-clear waters.
Choosing to invest in or live in this area means embracing a unique landscape where nature, history, and the sea blend in perfect harmony. It offers an authentic lifestyle experience, far removed from the fast pace of large cities, and immersed in the timeless beauty of the Mediterranean horizon.






















